В этой истории сошлось мое любимое комбо — маленькая жилплощадь (обожаю разглядывать планировку однушек) и старый советский фонд (квартира находится в многоэтажке 1973 года постройки).
Четырехсотлетние коттеджи в английской глубинке и деревянные домики на уединенных островах в Финляндии — это, конечно, интересно, но простому человеку всегда любопытно заглянуть за дверь соседской квартиры и посмотреть, как живут его соотечественники.
Сегодня мы переместимся на улицу Врубеля в Москве. Территориально она находится далековато от центра, но сам район (Сокол) считается очень хорошим и даже престижным — здесь отличная инфраструктура, все замечательно с транспортной доступностью, 10-15 минут на метро и ты — у Красной площади.

Так выглядит дом, в который мы сегодня заглянем. Сколько тут стоит жилье — сложно сказать, сейчас здесь не продают ни одной квартиры. А вот аренда двушки площадью 39 квадратов обойдется в 52 тысячи рублей
Как хозяйке удалось обустроить скромные 32 квадрата, куда она спрятала стиральную машину и где умудрилась найти место для дивана — смотрите чуть ниже.

Начнем экскурсию с прихожей. Однушку в панельке женщина купила в 2020 году и почти сразу же затеяла здесь ремонт / фото Ольга Шангина-Лестерлен
Из того, что сразу бросается в глаза: разное напольное покрытие. Плитка в прихожей плавно перетекает в ванную комнату, а вот в единственной комнате (она же спальня) — уже другой пол, спокойный и приятный наощупь.

Ванная комната получилась очень маленькой, поэтому здесь нашлось место только для душа. Стиральную машинку убрали в хозяйственный шкаф, который находится в прихожей (вы его могли увидеть на предыдущей фотографии, он рядом со входом в спальню) / фото Ольга Шангина-Лестерлен
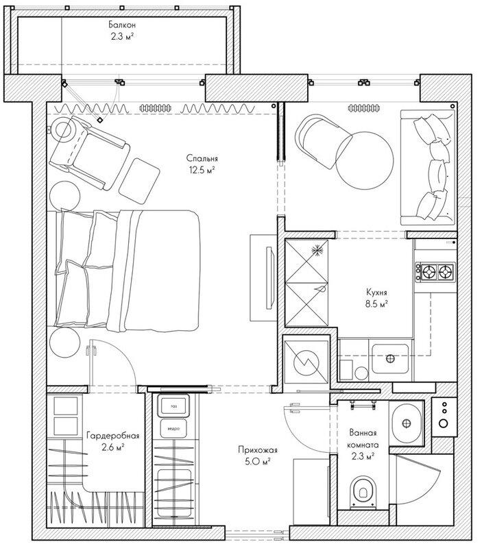
Вот план квартиры, с ним планировка становится более понятной:

Из необычного: секретный шкаф для стиралки, про который я вам уже рассказала, а также отдельная гардеробная (и это несмотря на скромную площадь квартиры) и выделенная зона отдыха с диваном на кухне

Заходим в спальню. Площадь комнаты — 12 квадратов, но тут, по сути, нет ничего, кроме кровати и кресла для чтения книг (или для работы за ноутбуком) / фото Ольга Шангина-Лестерлен

Вид от окна / фото Ольга Шангина-Лестерлен

Гардеробная довольно просторная, здесь запросто можно выделить место под хранение книг или других малогабаритных вещей / фото Ольга Шангина-Лестерлен

Больше всего мне понравилась нестандартная планировка кухни. Здесь зону приготовления еды визуально отделили от зоны отдыха / фото Ольга Шангина-Лестерлен
Кстати, заметили нишу в стене с цветочками? Впервые вижу такую идею. В этих стеклянных колбочках можно хранить свежую зелень.
Вся основная бытовая техника располагается по правую сторону (там духовка, посудомойка и холодильник).

Зона отдыха — самое яркое место в квартире. Мне нравится это акцентное и очень рациональное (с точки зрения планировки) решение. Квартира маленькая, а тут есть и отдельная спальня с кроватью, и какое-то подобие гостиной. Кстати, сразу предупрежу: фотографии сделаны сразу после ремонта, некоторые вещи здесь (например, половина папайи) — для сочного кадра, чтобы подчеркнуть атмосферу квартиры / фото Ольга Шангина-Лестерлен

Для одного человека — самое то. Яркие обои на одной акцентной стене — классная идея для монохромного интерьера (посмотрите еще раз на белую кухню, чтобы прочувствовать этот контраст) / фото Ольга Шангина-Лестерлен
— У хозяйки было четкое видение интерьера: в нем обязательно должна быть комфортная зона отдыха «не диванного типа» (кровать, кресло или пуф) и ниша с небольшой обеденной зоной в кухне. Одним из пожеланий было функциональное размещение мест для хранения верхней и повседневной одежды, бытовых вещей, а также стиральной и сушильной машин, — рассказывает дизайнер Анна Римс, занимавшаяся обустройством этой квартиры.
Благодарю Анну за то, что разрешила поделиться с вами этой историей и фотографиями













